O inwestycji
Mieszkania
Wizualizacje
Lokalizacja
Do pobrania
Kontakt
Zadzwoń / Umów spotkanie
O inwestycji
Mieszkania
Wizualizacje
Lokalizacja
Do pobrania
Kontakt
Zadzwoń / Umów spotkanie
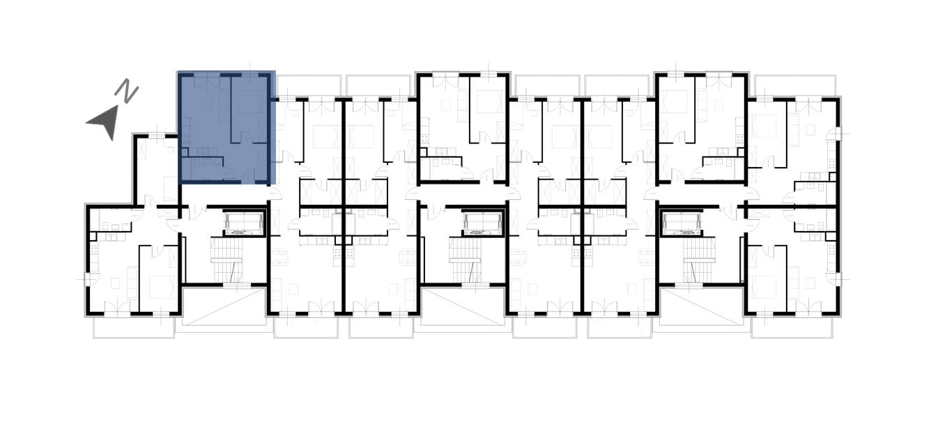
Klatka C, Lokal 2 Piętro II
Strona główna
Klatka C, Lokal 2 Piętro II
Klatka C, Lokal 2 Piętro II
Wolne
Pobierz Kartę Mieszkania
Metraż:
42,70 m²
Pokoje:
2
Piętro:
2
Cofnij
Udostępnij
Facebook
Twitter
LinkedIn
Bookmark
Zgłoś
Zgłoszenie naruszenia
×
Twoja skarga
*
394 932,30 zł
Location
Wskazówki dojazdu
Review
Zaloguj się, by zostawić opinię
Nie ma jeszcze żadnych opini.
Powrót